Compact and lightweight Load Haul Dump (LHD) for narrow vein mining. (Remote Control Available)
It offers reduced dilution, better flexibility, and operator safety while working in narrow vein operations. Easy to operate and maintain, and it features an operator compartment that is located in the rear frame of the machine to ensure increased operator safety.
The WJD-2 is full of features to help mines maximize tonnes and minimize extraction costs. Engineered to optimize machine width, length and turning radius, enabling operation in narrower tunnels for less dilution and lower operational costs.
Chat With Us
Leave Message
Drawing

Technical Specification
|
Dimension |
? |
Capacity |
||
|
Tramming Size |
7430*1815*2050mm |
Standard Bucket |
2m3 |
|
|
Min Ground Clearance |
250mm |
Payload |
4000KG |
|
|
Max Lift Height |
3975mm |
Max Breakout Force |
86KN |
|
|
Max Unloading Height |
1740mm |
Max Traction |
104KN |
|
|
? |
? |
Climing Ability(Laden) |
20° |
|
|
Performance |
Weight |
|||
|
Speed |
0~10.5km/h |
Operation Weight |
12500kg |
|
|
Boom Raising Time |
≤7.0s |
Laden Weight |
16500kg |
|
|
Boom Lowering Time |
≤4.0s |
Front Axle(Empty) |
4450kg |
|
|
Dumping Time |
≤4.2s |
Rear axle(Empty) |
8050kg |
|
|
Oscilation Angle |
±8° |
Front Axle(laden) |
8790KG |
|
Power Train
|
Electric Motor |
|
Transmission |
||
|
Model |
Y280S-4 |
Torque Converter |
DANA C270 |
|
|
Protection level???? |
IP55 |
Gearbox |
RT32000 |
|
|
Power |
75kw / 1480rpm |
Axle |
||
|
No. Of Poles |
4 |
Brand |
CMG |
|
|
Efficiency |
92.60% |
Model |
CY-2J |
|
|
Voltage |
220 / 380 / 440 |
Type |
Rigid planetary axle |
|
Structure
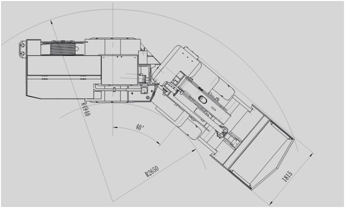
◆The frames are articulated with 40° steering angle.
◆Ergonomics Canopy with side seat to provide good bi-directional view of operation.
◆An enhanced boom and load frame geometry optimizes digging performance.
Operation Comfort & Safty
◆4 wheels driving & braking.
◆Combination design of parking brake & working brake ensures good braking performance. Braking model is SAHR(spring applied, hydraulic release).
◆Front axle is equipped NO-SPIN differential. While rear is ANTI-SLIP.
◆Low vibration level in cab
Early Warning & Maintenance
◆Automatic alarm system for oil temperature, oil pressure and electrical system.
Images